PDFで見る
建築家プラザLIV主催のイベント「建築家〜ニバル」における「趣味の家/2000万円の家づくり」の提案
夫婦と女の子一人の住宅です。奥さんの趣味はガーデニングです。狭小地なので、延床面積72㎡(21.78坪)、建築面積48㎡(14.52坪)までしか建てられません。2階にリビングダイニングキッチンを持っていきまして、二つのテラスを作りました。1階下屋の屋根の部分に10帖のルーフテラス、カーポートの上はグレーチングテラスを、法的面積に入らないように作りました。2面の道路に面しているので、プライバシーを考えて、ポリカーボネートの塀を取り付けています。 私の家づくりのテーマである“四季を楽しむ住宅”として、花の季節には趣味のガーデニング、外の気候の良い時には食事を楽しめます。オーニングを取り付けてますので、日差し、多少の雨の日でも問題ありません。12月はイルミネーションをシンボルツリーに照らしたり、冬は雪を楽しむテラスと言いたいところですが、雪を気になさる方は雪降ろしをすることでしょう。建物の構造には札幌市の降雪量には耐えられる強度は保っていますので、雪降ろしはしなくても問題はありません。この住宅には含まれてませんが、テラス部分に換気の廃熱をヒーテイングに使用する方式もあります。
Reservation
家づくりのはじめの一歩。私たちと家づくりのことをお話しませんか?
無料相談ご予約
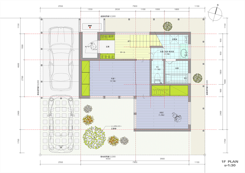
建築家プラザLIV主催のイベント「建築家〜ニバル」における「趣味の家/2000万円の家づくり」の提案
夫婦と女の子一人の住宅です。
奥さんの趣味はガーデニングです。狭小地なので、延床面積72㎡(21.78坪)、建築面積48㎡(14.52坪)までしか建てられません。2階にリビングダイニングキッチンを持っていきまして、二つのテラスを作りました。1階下屋の屋根の部分に10帖のルーフテラス、カーポートの上はグレーチングテラスを、法的面積に入らないように作りました。2面の道路に面しているので、プライバシーを考えて、ポリカーボネートの塀を取り付けています。
私の家づくりのテーマである“四季を楽しむ住宅”として、花の季節には趣味のガーデニング、外の気候の良い時には食事を楽しめます。オーニングを取り付けてますので、日差し、多少の雨の日でも問題ありません。12月はイルミネーションをシンボルツリーに照らしたり、冬は雪を楽しむテラスと言いたいところですが、雪を気になさる方は雪降ろしをすることでしょう。建物の構造には札幌市の降雪量には耐えられる強度は保っていますので、雪降ろしはしなくても問題はありません。この住宅には含まれてませんが、テラス部分に換気の廃熱をヒーテイングに使用する方式もあります。